Add to Cart Sold Out

Mass Housing in Ukraine (Hardcover)

€ 48.00

 incl. MwSt., excl. shipping costs

Building Typologies and Catalogue of Series


Kateryna Malaia and Philipp Meuser

 

Winner of the ARCHITECTS' COMPANY BOOK AWARDS 2025


• Comprehensive documentation of housing construction in Ukraine

• The most important housing series and iconic residential buildings 

• Documentation of war-damaged residential buildings in selected cities


Housing is the most omnipresent urban typology. Housing is also the essential architecture of the human condition. Perhaps more than any other architectural species, housing determines how urbanites construct their lives and build their shared futures. The full-scale war of aggression in Ukraine, started by the Russian Federation in 2022, has disproportionally affected housing and residential infrastructure. The destruction is so targeted and the damage so significant that it has disfigured entire neighbourhoods and erased entire cities.

With the scale of damage and loss in mind and the future wide-ranging reconstruction that will inevitably occur after the war, this study examines the history and typologies of mass housing in Ukraine. It does so to evaluate what is lost, explain the diversity of modes of urban living in Ukrainian cities, and finally, reconsider the narrative of how Ukrainian housing came about. The study covers the last 100 years: the time of the most dramatic expansion and changes in the character of Ukrainian cities. It begins with the experimental buildings constructed in the Soviet Central and Eastern Ukraine and Polish Western Ukraine in the 1920s and 1930s, continues by looking at type projects from the Stalin era, as well as the serial apartment blocks built during the reigns of Khrushchev and Brezhnev and in the late USSR. Finally, it showcases individually designed yet typical residential buildings from the turbo-capitalist period of the 1990s and 2000s.

With the help of archival materials—texts, blueprints, and photographs—and contemporary documentation, the authors analyse 40+ examples of Ukrainian-designed or modified housing types. Through uncovering the Ukrainian context and the work of Ukrainian architects, design institutions, contractors, and developers, the history of Ukrainian housing is emancipated from the Russian narrative of the Soviet past. By doing so, they aim to write the history of a specifically Ukrainian building tradition and contribute to embedding it in the context of all-European architectural history.

See the content of all five chapters below.

This title is part of the Histories of Ukrainian Architecture programme initiated by DOM publishers in response to Russia’s attack on Ukraine’s sovereignty on 24 February 2022.

210 x 230 mm
408 pages

650 images
Hardcover

ISBN 978-3-86922-831-0

 

Here you can find the blurb.


 

 

 

Chapters:

1922–1938

Ukrainian residential architecture under the early USSR and the Republic of Poland     

Residential courtyard on vul. Stryiska, Lviv 
Tarnavskoho ensemble, Lviv 
Slovo House, Kharkiv
Settlement No. 6, Zaporizhzhia
Kharkiv Tractor Factory, Kharkiv
Zhovtnivka Cooperative, Kyiv
First prefabricated building, Kharkiv

1938–1958
Stalin and the end of Modernism      

Five Modernist apartment buildings, Lviv
Series I-302   
Khreshchatyk, Kyiv
Series 7
Series 11
Sobornyi prospekt, Zaporizhzhia
House with a Spire, Kharkiv
Series I-403
Series I-406

1958–1984
First- and second-generation series under and after Khrushchev

Series I-438
Series I-464A
Series 1-480
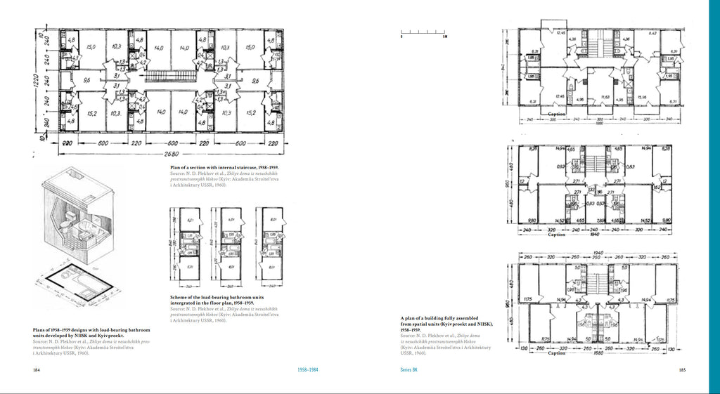
Series BK
Series II-57
Series 67
Series 84
Series 87
Series 94
Series 96
Series 121
Series T
Series KT

1984–2008
Late Soviet and early post-Soviet construction

Series APPS 
Series APPS Lux
Postmodernist Podil, Kyiv
Slavutych new town, Slavutych
Cast-in-place towers, Kyiv
Amphiteatr/Amsterdam, Dnipro
Vozdvyzhenka: pseudo-historicism, Kyiv

2008–2022
Turbo-capitalism and urban renaissance
 

Residential complexes by Kadorr, Odesa
Karat, residential building, Kharkiv
Residential complexes by Budova, Odesa
Comfort Town, Kyiv
Fayna Town, Kyiv
Municipal housing, Vinnytsia